Porzione di bifamiliare in Vendita a Legnano
Classe energetica
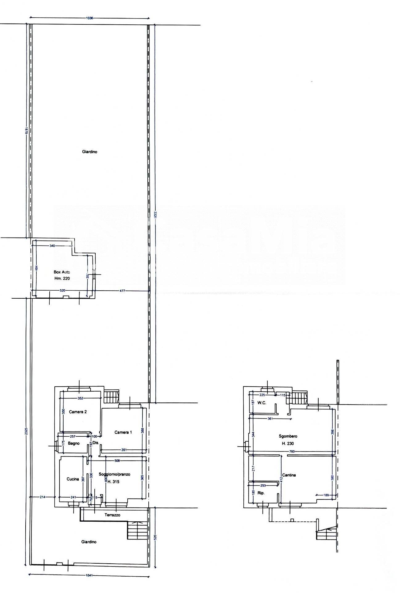
Proponiamo in Vendita a Legnano, zona "Flora", porzione di villino bifamigliare di 3 locali e servizi, totalmente cantinato con ampio box rimessa auto di circa 25 metri quadrati e terreno di proprietà esclusiva a giardino e orto di complessivi 380 metri quadrati.
L'unità immobiliare è completamente da ristrutturare, risale ai primi anni '60 e nell'anno 1986 è stata oggetto di un condono edilizio a sanare alcuni lavori non concessionati, relativi al box ad uso autorimessa.
L'appartamento ad uso abitativo, di altezza (h. 3,15 metri) è sviluppato interamente al piano rialzato, si accede da un balcone sull'ingresso con un piccolo disimpegno che da sul soggiorno con affiancata una cucina abitabile. Il disimpegno notte conduce a due camere di buone dimensioni e ad un bagno. Al piano seminterrato, di altezza (h. 2,30 metri), si accede da un'ingresso esterno, localizzato sulla facciata interna della casa, affacciata sul terreno di proprietà, è presente un bagno/lavanderia, due grossi locali sgombero oltre a due ulteriori cantinette.
La porzione di villino bifamigliare in Vendita a Legnano, zona "Flora" è libera subito. Classe energetica "G".































