Villa singola in Vendita a Legnano
Classe energetica
EP glnr: 600.97 kwh/m²
Legnano, confine San Giorgio su Legnano, villetta singola con taverna e giardino di proprietà. Libera subito.
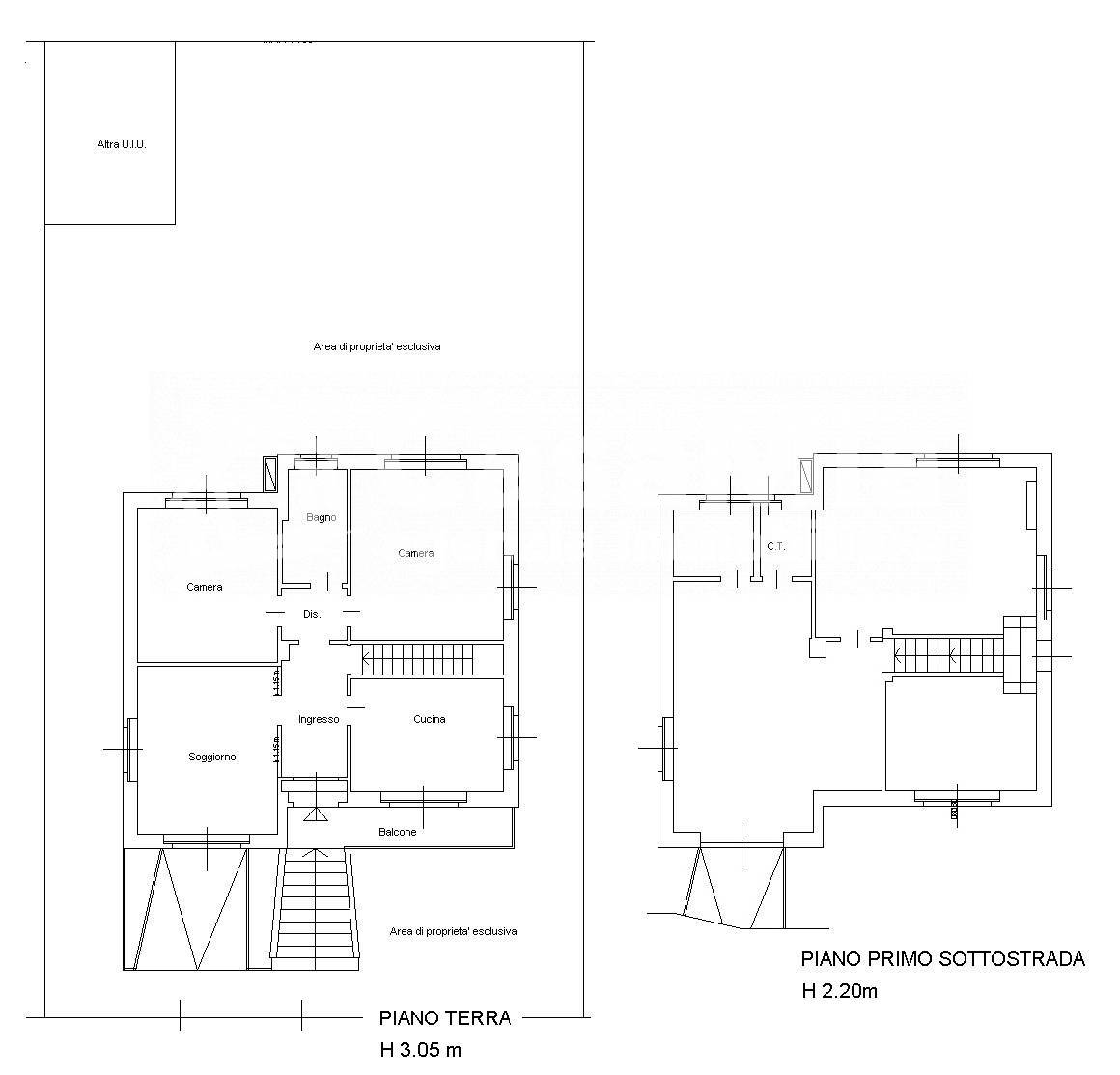
Legnano, in zona servita comoda per i servizi di prima necessità, proponiamo in Vendita villetta singola libera su quattro lati, molto luminosa, composta da tre locali di mq 90 ca disposta tutta su unico piano oltre ampia taverna.
La casa è circondata dal giardino, una piacevole area esterna di proprietà ideale per consumare pranzi all'aperto con la famiglia o gli amici; internamente l'immobile è disposto tutto su unico piano ed è così composto: al piano rialzato ingresso, soggiorno e cucina abitabile servita da un balcone; il disimpegno della zona notte conduce alle due grandi camere da letto e al bagno con doccia; una comoda scala in muratura conduce alla spaziosa taverna e all'ampia cantina.
La casa è libera subito ed è da ristrutturare.






















