Porzione di bifamiliare in Vendita a Rescaldina
Classe energetica
Proponiamo in Vendita a Rescaldina, nella zona nei pressi del centro commerciale "Conad", porzione di casa bifamiliare, libera su tre lati, di nuova costruzione con consegna a 2/3 mesi dalla scelta del capitolato delle finiture interne.
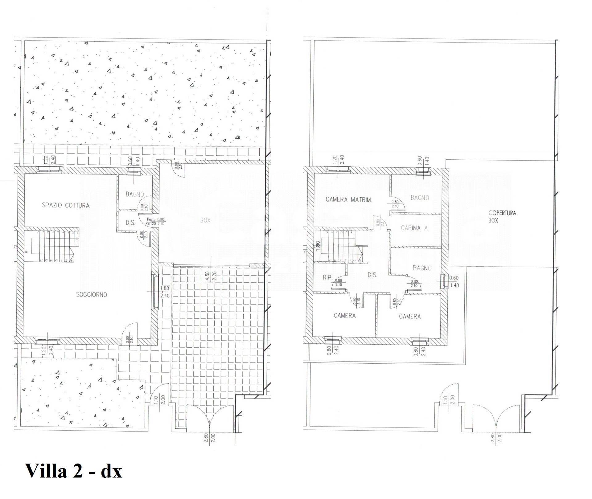
La casa, libera su tre lati, risulta molto luminosa ed è ubicata in zona residenziale. Si compone, al piano terra, da ampio salone, cucina, bagno ed ampio ripostiglio affiancato al box doppio in lunghezza. La comoda scala, ancora da definirne la tipologia, a scelta del proponente, sbarca al piano primo dove si sviluppa la camera principale con cabina armadio e bagno padronale, oltre a due seconde camere servite da balcone con bagno e ripostiglio, nel disimpegno notte.
Completano la soluzione abitativa 2 posti auto nella zona pavimentata fronte box ed uno spazio privato esterno di 215 mq ca.
FINITURE:
- Classe energetica "A";
- Pompa di calore e riscaldamento a pavimento;
- Predisposizione aria condizionata;
- Cappotto in graffite;
- Pannelli fotovoltaici;
- Predisposizione antifurto;
- Serramenti in PVC e tapparelle in alluminio motorizzate;
- Pavimentazioni di prima scelta.
GARANZIE:
- Fidejussione a garanzia degli acconti versati;
- Polizza postuma decennale a garanzia dei lavori eseguiti.
La Vendita viene effettuata a corpo ed è compresa di spese di allacciamenti e frazionamenti catastali.
Possibilità di una volumetria residua per ulteriori 50 mq di abitazione, da realizzare in un eventuale secondo piano.






